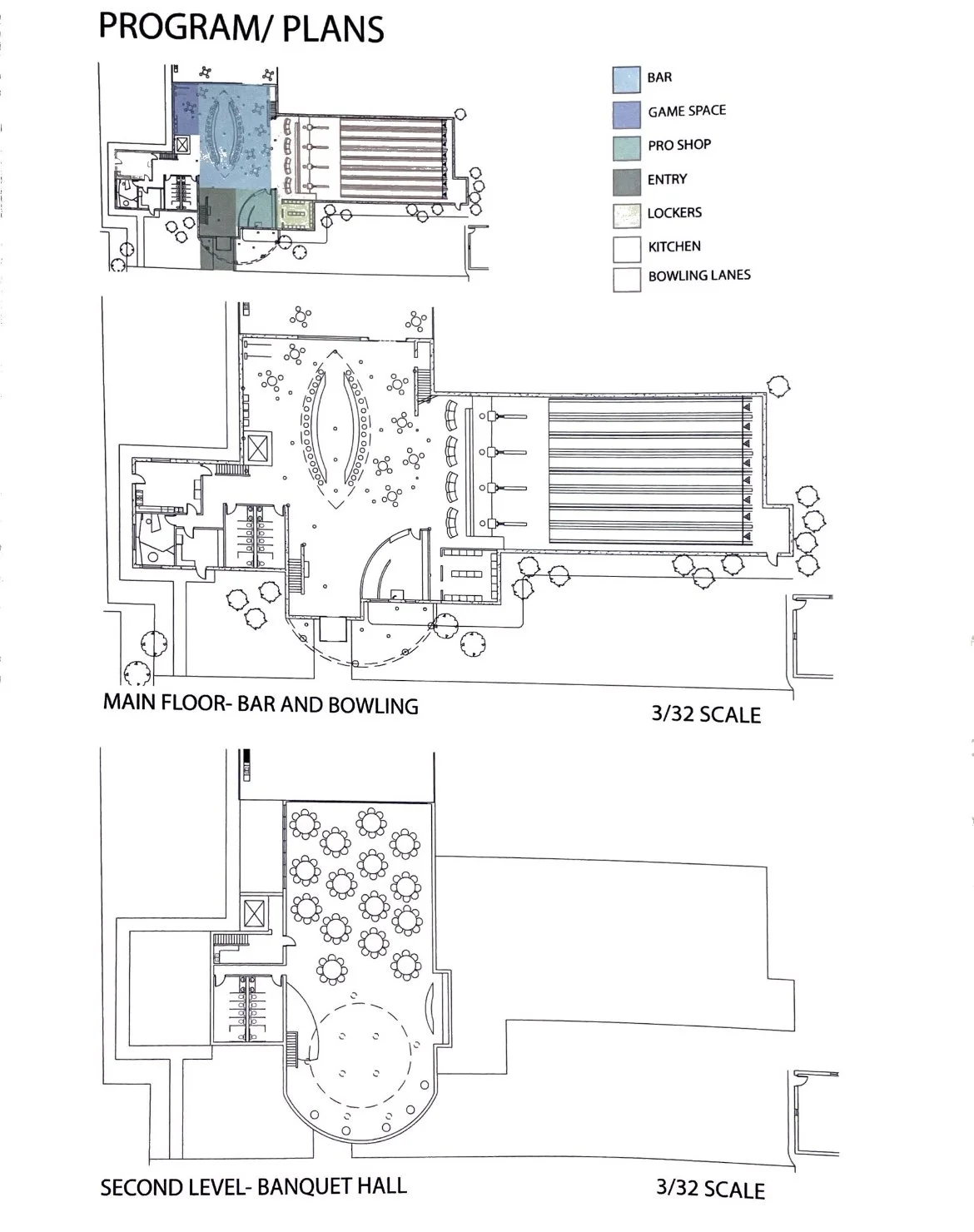
In my final year at MIAD I completed my thesis project by modernizing a 1960s bowling alley. A thesis is a research project that embodies all the skills I learned during my four yers in college. Cedars Bowling Alley is located in Cedarburg Wisconsin. The site is unique because the building is surrounded by a large amount of nature, Cedar Creek, cedar trees, and is in a neighborhood setting. Sticking with the Cedar theme the idea was to create a dense forest on the first floor and a light airy tree canopy on the second floor. To complete a thesis project a list of diagrams had to be drawn, 6+ presedent bowling alleys were visited, people were observed in Cedars as well as the 6 presedent locations. I took photographs at many different times through out the day inside and outside Cedars, and I completed lots of measuring. After the research was done I began my concept sketches which lead to my final design.

Next
Next

Home Depot: Grace Isley Kitchen, Flooring, Lighting, Bathroom